Ejemplo de Isozaki en nuestro país.
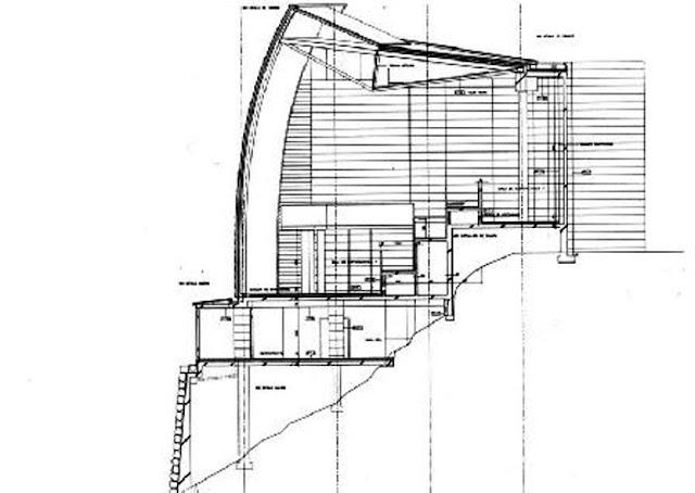
Museo La Casa del Hombre. " Domus " A Coruña 1994 Arata Isozaki y César Portela.
La monumental fachada se curva como si se tratase de la vela de un navío hinchada por el viento.
Fachada principal realizada con paneles pretensados de hormigón,en forma de "U", de 2'61 m de ancho y 16'05 m de alto, con acabado visto en su cara interior.
Fachada principal acabada y realizada por losas de pizarra de 50 x 53 cm, sujetas mediante fijaciones a los paneles de hormigón pretensado en forma de "U" de 2'61 m de ancho y 16'05 m de alto, con acabado visto en su cara interior.
Fachada posterior formada por un doble muro de fábrica de sillares de granito de 21 cm de grosor, dispuesto en filas de 45 cm de altura. Muros, separados 12 cm. entre sí que acogen una capa de hormigón armado, formando así un sandwich de 54 cm. de ancho total, que trabaja solidariamente.
Cubierta está construida con placas de pizarra tomadas con mortero de cemento sobre una losa formada por paneles aligerados.
Descripción de esta fantástica Obra con críticas, siempre constructivas.
























No hay comentarios:
Publicar un comentario